专利数据库
统计分析
产业报告
专利数据监控
产业人才
行业动态
产业政策法规
维权援助
个人中心
详情
文本
图像
标题
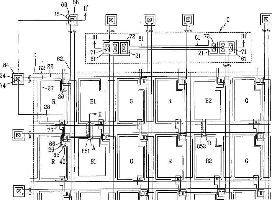
Liquid crystal display
授权日
1900-01-01
公开(公告)号
US20040085495A1
申请日
2002-02-25
公开(公告)日
2004-05-06
当前申请(专利权)人
SAMSUNG DISPLAY CO., LTD.
发明人
ROH, NAM-SEOK | HONG, MUN-PYO | CHAI, CHONG-CHUL | RHO, SOO-GUY
简单同族
AU2002235010A1 | CN1321342C | CN1503921A | JP2005513572A | JP4202927B2 | KR100870003B1 | KR1020030054280A | TW583435B | US20040085495A1 | US6850294 | WO2003056383A1
简单同族成员数量
11
简单同族被引用专利总数
166
诉讼案件数
0
法律状态/事件
授权 | 权利转移
抱歉,您的浏览器不支持PDF预览,请点击链接下载PDF文件