专利数据库
统计分析
产业报告
专利数据监控
产业人才
行业动态
产业政策法规
维权援助
个人中心
详情
文本
图像
标题
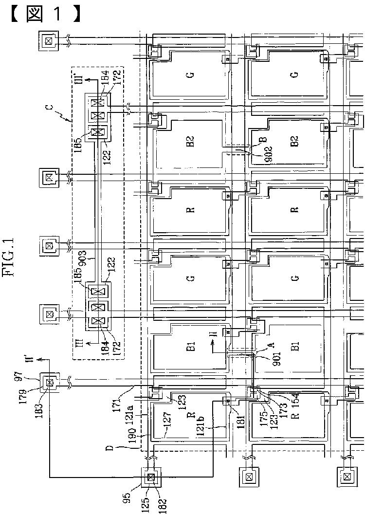
液晶表示装置
授权日
2010-05-14
公开(公告)号
JP4508870B2
申请日
2002-11-05
公开(公告)日
2010-07-21
当前申请(专利权)人
サムスン エレクトロニクス カンパニー リミテッド
发明人
ロ,ナム-ソク | チェ,チョン-チュル | シン,キョン-ジュ
简单同族
AU2002353574A1 | CN100430783C | CN1668969A | JP2005539270A | JP4508870B2 | KR100890024B1 | KR1020040025063A | TW200406636A | TWI304147B | US20070040952A1 | US7450190 | WO2004027503A1
简单同族成员数量
12
简单同族被引用专利总数
80
诉讼案件数
0
法律状态/事件
授权 | 权利转移
抱歉,您的浏览器不支持PDF预览,请点击链接下载PDF文件