首页
专利数据库
产业人才
行业动态
产业政策法规
维权援助
个人中心
登录/注册
详情
文本
图像
标题:
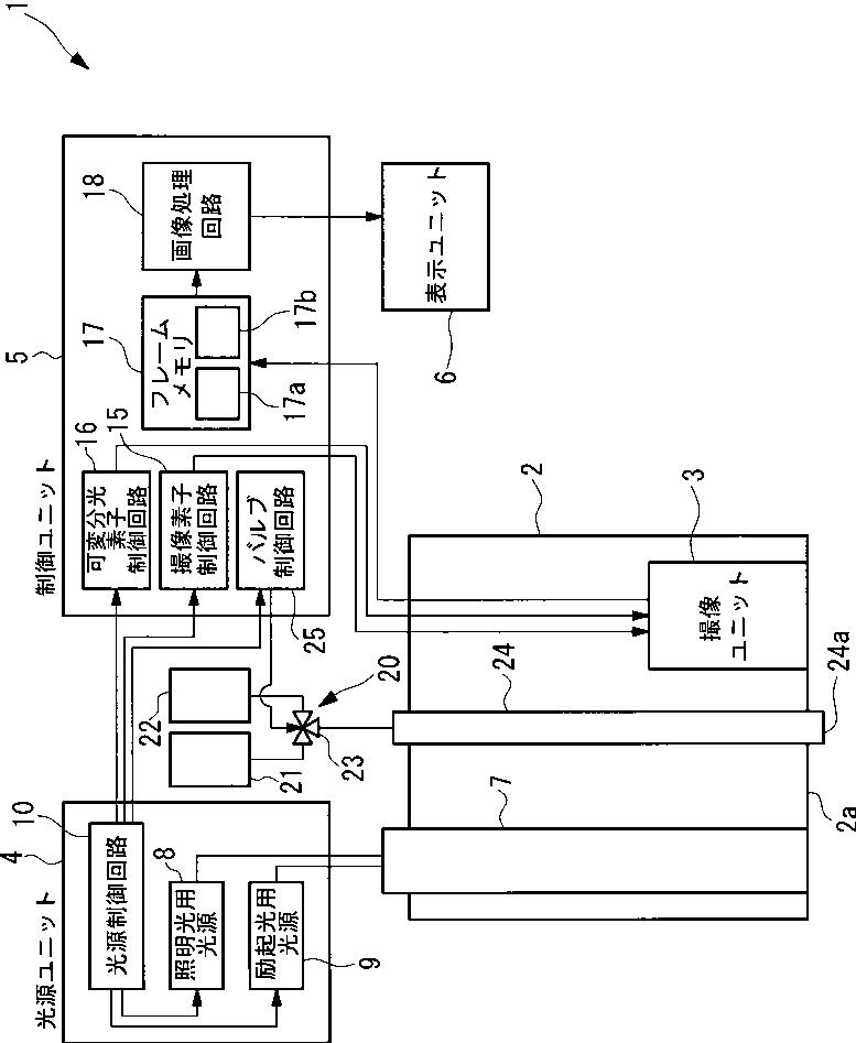
内視鏡システム
授权日:
1900-01-01
公开(公告)号:
JP2007229054A
申请日:
2006-02-28
公开(公告)日:
2007-09-13
当前申请(专利权)人:
オリンパス株式会社
发明人:
森下 弘靖 | 長谷川 晃
简单同族:
CN101389259A | CN101389259B | EP1989992A1 | EP1989992A4 | EP1989992B1 | JP2007229054A | JP4954573B2 | US20070213588A1 | US8021295 | WO2007099840A1
简单同族成员数量:
10
简单同族被引用专利总数:
70
诉讼案件数:
0
法律状态/事件:
授权 | 权利转移