标题:
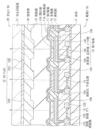
発光素子およびその製造方法、ならびに表示装置
授权日:
1900-01-01
公开(公告)号:
JP2005011792A
申请日:
2003-08-22
公开(公告)日:
2005-01-13
当前申请(专利权)人:
ソニー株式会社
发明人:
横山 誠一 | 花輪 幸治 | 芝崎 孝宜 | 平野 貴之
简单同族:
EP1606848A1 | EP1606848B1 | JP2005011792A | JP2005011792A5 | JP4362696B2 | KR100990871B1 | KR1020050113125A | TW200501798A | TWI268731B | US20060145159A1 | US20070114526A1 | US7250634 | US7615792 | WO2004086531A1
简单同族成员数量:
14
简单同族被引用专利总数:
97
诉讼案件数:
0
法律状态/事件:
授权